Unser Angebot am Standort Chemnitz-Einsiedel
Das GZE bietet auf über 5.300 m² flexible Flächenkonzepte für Unternehmen jeder Größe. Von modernen Büros bis zu hoch belastbaren Produktionsflächen – wir schaffen den Raum für Ihren Erfolg.
FLEXIBLE FLÄCHEN
Mieteinheiten von 50 m² bis über 500 m². Dank solider Bausubstanz und hoher Traglast ideal für Handwerk, Produktion oder Büro.
TOP INFRASTRUKTUR
180 Stellplätze, eigene Bistro-Gastronomie, moderne Lastenaufzüge und LKW-Zufahrt mit Wendemöglichkeit direkt am Objekt.
ZENTRALE ANBINDUNG
Direkte Bahnanbindung (Bahnhof Einsiedel Gymnasium) sowie schnelle Wege zur A72 (13 Min.) und ins Chemnitzer Zentrum (15 Min.).
Standort in bester Lage
Machen Sie das GZE zu Ihrem neuen Geschäftssitz und profitieren Sie von einem starken, etablierten Netzwerk. Namhafte regionale und internationale Unternehmen – darunter PULS, Oerlikon Balzers, NessLog und EST – sind hier bereits erfolgreich zu Hause.
Auf unserem 18.905 qm großen Areal finden Sie nicht nur moderne Gewerbeflächen, sondern eine Infrastruktur, die mitdenkt:
Das repräsentative Hauptgebäude ist mit modernsten Personen- und leistungsstarken Lastenaufzügen ausgestattet. Für reibungslose Logistik sorgen eine breite LKW-Zufahrt inklusive großzügiger Anlieferungs- und Wendemöglichkeiten sowie ein Kontingent von 180 PKW- und LKW-Stellplätzen.
Flächenübersicht des Gewerbezentrums Einsiedel
Das Gewerbezentrum Einsiedel erstreckt sich über eine Gesamtgrundstücksfläche von 18.905 Quadratmetern, welche sich aus mehreren Flurstücken zusammensetzt. Den größten Anteil bildet dabei das Flurstück 146/12 mit 14.085 Quadratmetern, gefolgt von den Flurstücken 143/2 mit 2.000 Quadratmetern und 143/a mit 1.570 Quadratmetern. Die restliche Grundstücksgröße verteilt sich auf die kleineren Flurstücke 143/p (580 Quadratmeter), 143/q (420 Quadratmeter) und 143/b (250 Quadratmeter).
Auf diesem Areal belaufen sich die Gebäudeflächen auf insgesamt 5.307 Quadratmeter bei einem Gesamtrauminhalt von 20.292 Kubikmetern. Das Hauptgebäude nimmt hierbei mit 4.009 Quadratmetern Fläche und einem Rauminhalt von 15.670 Kubikmetern den größten Raum ein. Zusätzlich gibt es ein Nebengebäude mit einer Fläche von 1.248 Quadratmetern bei 4.372 Kubikmetern Rauminhalt sowie ein kleineres Pförtnergebäude, das 52 Quadratmeter Fläche und 150 Kubikmeter Rauminhalt umfasst. Abgerundet wird die Infrastruktur des Gewerbezentrums durch 12 Einzelgaragen sowie ein Kontingent von 180 PKW- und LKW-Stellplätzen.
Gerne beraten wir Sie kostenlos und unverbindlich zu den Möglichkeiten.
Sprechen Sie uns an.


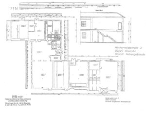
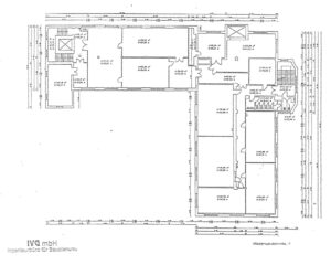
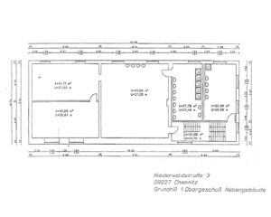
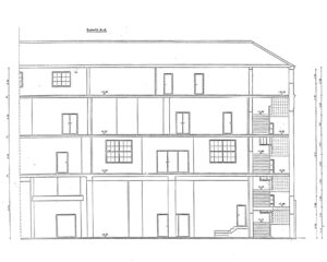
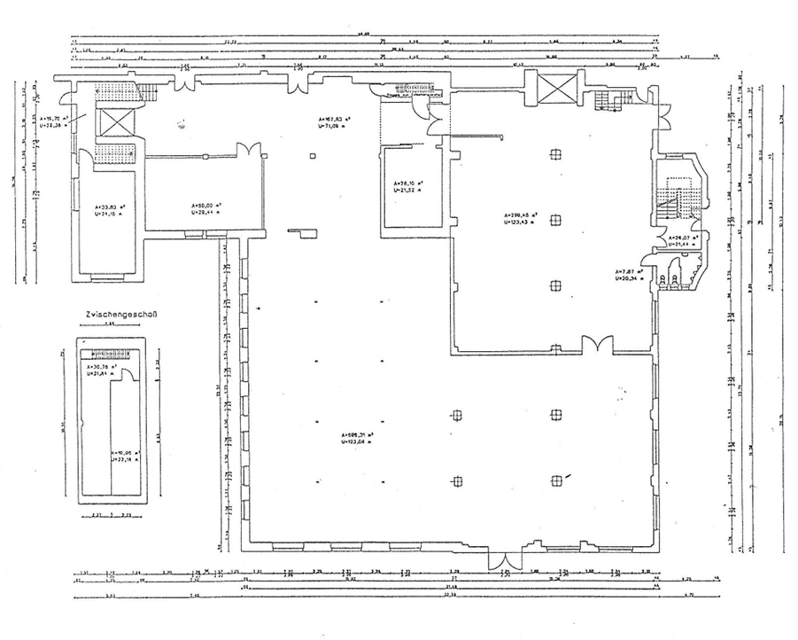
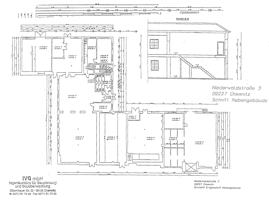
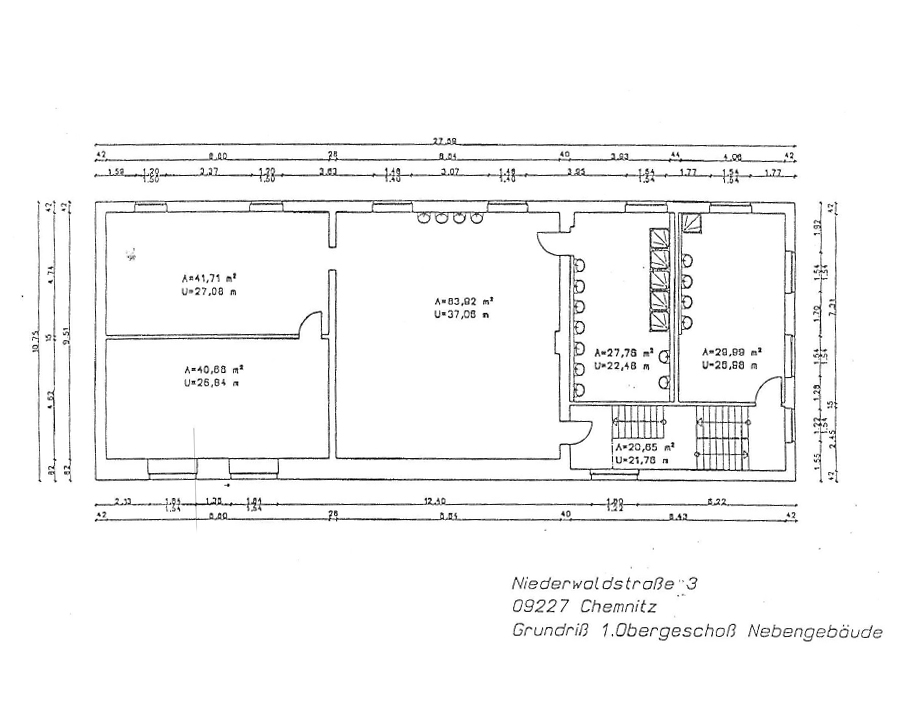
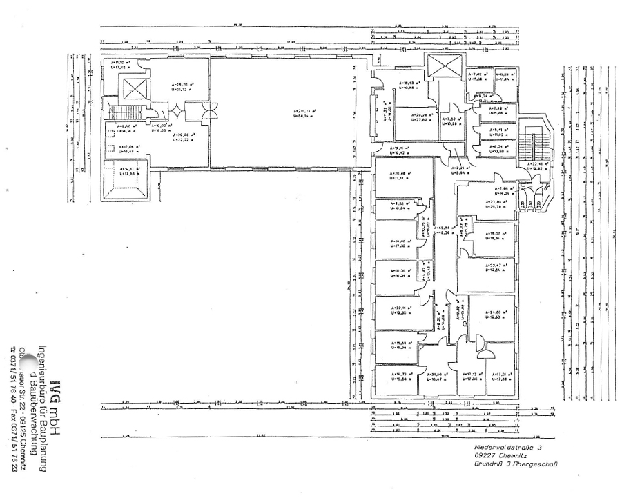
Grundrisse und Impressionen
des Gewerbezentrums Einsiedel
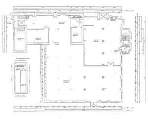
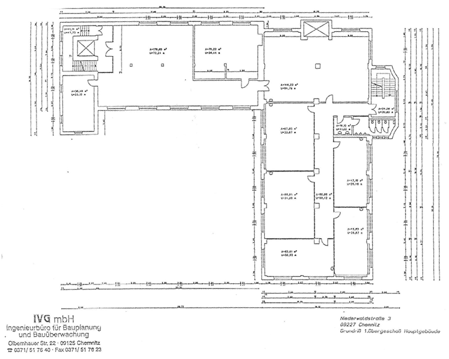
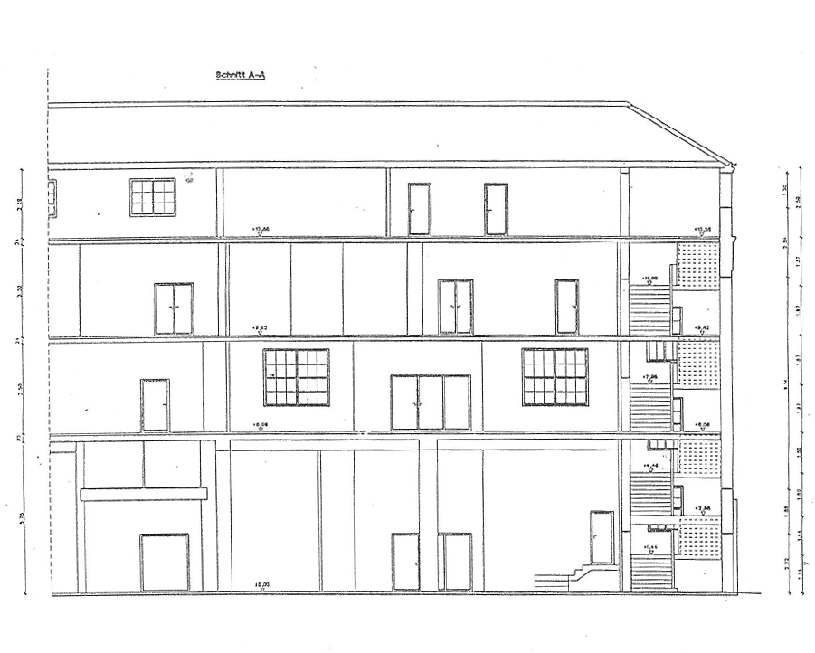
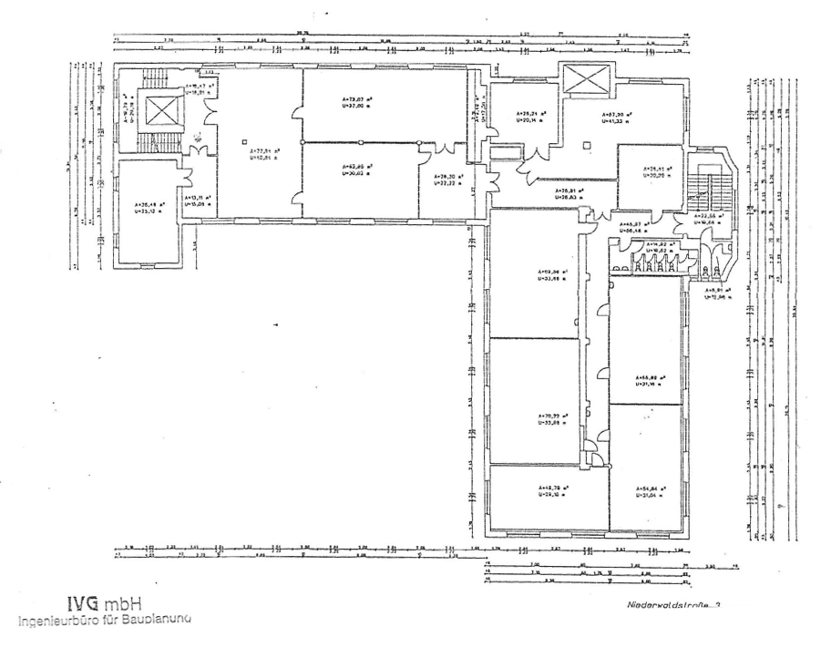
Entdecken Sie die räumlichen Dimensionen des GZE im Detail. Wir haben für Sie acht präzise technische Zeichnungen zusammengestellt, die Ihnen einen umfassenden Einblick in die Gebäudestruktur bieten. Zusätzliche fotografische Impressionen aus dem Inneren zeigen Ihnen zudem direkt, wie die Flächen wirken und wie Ihr zukünftiger Unternehmensstandort aussehen könnte.
Aktuelle Mietangebote
Entdecken Sie hier unsere derzeit verfügbaren Immobilien zur Miete. Ein einfacher Klick auf das jeweilige Bild öffnet das detaillierte Exposé mit allen wichtigen Informationen, Bildern und Ausstattungsmerkmalen. Haben Sie Ihr passendes Wunschobjekt gefunden? Dann nehmen Sie bei Interesse gern telefonisch oder per E-Mail Kontakt mit uns auf. Wir freuen uns auf Ihre Anfrage!

Büros im Hauptgebäude 1. OG
Infos ansehen
Halle / Lager 227 m²
Infos ansehen
Büros mit Nebenraum 1. OG
Infos ansehen
Büros mit Nebenraum 1. OG
Infos ansehen
Vorteilhafte Lage mit
zentraler Anbindung
Das Gewerbezentrum Einsiedel an der Niederwaldstraße 3 in 09123 Chemnitz überzeugt durch seine vorteilhafte Lage und eine exzellente Anbindung. Durch den direkt gegenüberliegenden Bahnhof „Einsiedel Gymnasium“ profitieren Sie von einer optimalen öffentlichen Verkehrsanbindung in die umliegenden Ortschaften sowie direkt in das Chemnitzer Stadtzentrum. Zusätzlich gewährleistet die im Jahr 2005 eröffnete Erzgebirgsbahn eine hervorragende überregionale Erreichbarkeit.
Auch für den PKW-Verkehr ist der Standort ideal erschlossen. Über eine schnelle Anbindung an die Einsiedler Hauptstraße erreichen Sie wichtige Verkehrsknotenpunkte in kürzester Zeit: Die Bundesstraße B 174 ist in nur 8 Minuten erreichbar und die Auffahrt zur Autobahn A 72 liegt lediglich 13 Fahrminuten entfernt. Bis in die Chemnitzer Innenstadt benötigen Sie rund 15 Minuten. Darüber hinaus sind auch größere Wirtschaftszentren und überregionale Ziele sehr bequem erreichbar: Die Städte Dresden und Leipzig liegen jeweils nur eine Autostunde entfernt, und zum Flughafen Leipzig/Halle gelangen Sie in etwa einer Stunde und 20 Minuten.
Kontakt aufnehmen
Haben Sie Fragen zu unseren verfügbaren Flächen, den Mietkonditionen oder benötigen Sie weitere Details zum Gewerbezentrum Einsiedel? Wir stehen Ihnen gerne für ein persönliches Gespräch zur Verfügung. Kontaktieren Sie uns per E-Mail oder rufen Sie uns an. Wir freuen uns auf Ihre Anfrage und melden uns schnellstmöglich bei Ihnen.
GZE – Gewerbezentrum Einsiedel
Sichern Sie sich die idealen Flächen für Ihr Unternehmen im Gewerbezentrum Einsiedel. Schreiben Sie uns gern eine E-Mail für eine unkomplizierte Anfrage.
Hinterlassen Sie uns Ihre Kontaktdaten und ein paar Stichworte zu Ihrem Flächenbedarf, und wir setzen uns umgehend mit Ihnen in Verbindung, um die nächsten Schritte zu besprechen.
Standort:
Niederwaldstraße 3, 09123 Chemnitz
Telefon:
+49 172 61 041 39

































